ザ・ライオンズフォーシア蒲田 蒲田の1DK賃貸マンション!|株式会社石川商事

営業時間 10:00〜18:00
定休日  水曜、第1・3火曜
石川商事のインスタグラム

ザ・ライオンズフォーシア蒲田 1203 蒲田の1DK賃貸マンション 
  • お気に入り追加
  • お問い合わせ
  • 印刷

  • 15.7万円 / 管理費:- / 共益費:10,000円
  • 間取り:1DK / 専有面積:27.83m2
  • 敷金:1ヶ月 / 礼金:0ヶ月 / 保証金:0ヶ月 / 償却: 0ヶ月 / 敷引:-
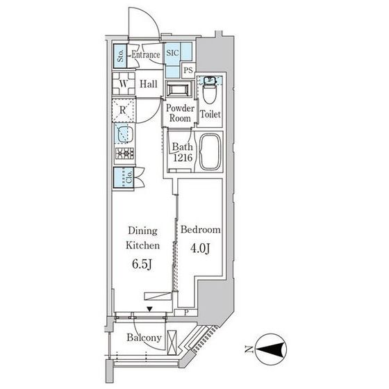
【間取】 
  • 【間取】 
  • 【建物外観】 
  • 【エントランス】 

【ザ・ライオンズフォーシア蒲田 についてスタッフからのイチオシポイント!】

★川崎・蒲田エリアのお部屋探しは石川商事にお任せください♪♪★
ザ・ライオンズフォーシア蒲田 は東京都大田区西蒲田8丁目【JR京浜東北・根岸線 蒲田駅徒歩4分】にある1DK賃貸マンションです。
新築築の15階建てのマンションで、お部屋は15階建ての12階部分です。
物件の広さは27.83m2で人気の1DKです。
※お部屋のもっと詳しい内容や入居時期、諸条件のご相談など、ホームページには掲載が間に合わず載せきれていない情報もございます。
気になることが御座いましたらお気軽にメールにてお問い合わせください。
044-276-2536
株式会社石川商事 川崎東口店
お問い合わせNO:RHS-108399-41

物件基本情報

所在地 東京都大田区西蒲田8丁目 
交通 JR京浜東北・根岸線 「蒲田駅」 徒歩4分
京急本線 「京急蒲田駅」 徒歩17分
東急池上線 「蓮沼駅」 徒歩11分
種別 / 構造 マンション / RC造(鉄筋コンクリート造) 主要採光面 西 所在階 / 階数 12階 / 15階
築年月 新築  間取り 1DK( DK6.5畳/洋室4畳 ) 専有面積 27.83m2

物件詳細情報

損保 更新料 あり 15.7万円 鍵交換代 -
駐車場 空無 近隣駐車場   契約期間
借家区分
- -
現況 空家 入居可能日 即入居可 取引態様 媒介
保証人代行会社 クレディセゾン・レジデントアシスタンス株式会社[保証会社利用料]初回保証委託料(最低15,000円) 仲介手数料 17.27万円 バイク置き場
他初期費用

設備詳細情報

キッチン
  • システムキッチン
  • 2口コンロ
バス・トイレ
  • バストイレ別
  • 浴室乾燥機
  • 洗面所独立
  • 温水洗浄便座
  • トイレ
住空間
  • バルコニー
  • フローリング
  • エアコン
設備・サービス
  • クロゼット
  • シューズボックス
  • オートロック
  • エレベーター
  • 宅配ボックス
  • バイク置場
  • BS
  • CATV
特 徴
条件・その他  ペット:対応 / 保証人代行:必加入 / フリーレント:2ヶ月あり
  • 室内洗濯機置き場
  • 2F以上
コメント ★川崎・蒲田エリアのお部屋探しは石川商事にお任せください♪♪★
備 考 ☆JR蒲田駅より徒歩4分の好立地!フリーレント2ヶ月!!ペット相談可!楽器相談可(ピアノ可)!まずはお問合せお待ちしております☆

情報更新日:2026年04月30日 次回更新予定日:2026年05月14日
※各種情報と差異がある場合は現況優先となります

こちらの物件の空室状況

部屋番号 賃料 共益費 / 管理費 間取り 専有面積 敷金 礼金 お気に入り 物件詳細
204 23.3万円 15,000円 / - 2LDK 41.79m2 1ヶ月 0ヶ月 お気に入り 物件詳細
405 22.3万円 15,000円 / - 2LDK 41.79m2 1ヶ月 0ヶ月 お気に入り 物件詳細
505 22.5万円 15,000円 / - 2LDK 41.79m2 1ヶ月 0ヶ月 お気に入り 物件詳細
605 22.5万円 15,000円 / - 2LDK 41.79m2 1ヶ月 0ヶ月 お気に入り 物件詳細
705 22.6万円 15,000円 / - 2LDK 41.79m2 1ヶ月 0ヶ月 お気に入り 物件詳細
903 15.6万円 10,000円 / - 1DK 27.83m2 1ヶ月 0ヶ月 お気に入り 物件詳細
905 22.7万円 15,000円 / - 2LDK 41.79m2 1ヶ月 0ヶ月 お気に入り 物件詳細
1005 22.7万円 15,000円 / - 2LDK 41.79m2 1ヶ月 0ヶ月 お気に入り 物件詳細
1101 15.6万円 10,000円 / - 1DK 27.86m2 1ヶ月 0ヶ月 お気に入り 物件詳細
1103 15.7万円 10,000円 / - 1DK 27.83m2 1ヶ月 0ヶ月 お気に入り 物件詳細
1105 22.9万円 15,000円 / - 2LDK 41.79m2 1ヶ月 0ヶ月 お気に入り 物件詳細
1201 15.6万円 10,000円 / - 1DK 27.86m2 1ヶ月 0ヶ月 お気に入り 物件詳細
1203 15.7万円 10,000円 / - 1DK 27.83m2 1ヶ月 0ヶ月 お気に入り 物件詳細
1301 15.7万円 10,000円 / - 1DK 27.86m2 1ヶ月 0ヶ月 お気に入り 物件詳細
1303 15.8万円 10,000円 / - 1DK 27.83m2 1ヶ月 0ヶ月 お気に入り 物件詳細
1305 23万円 15,000円 / - 2LDK 41.79m2 1ヶ月 0ヶ月 お気に入り 物件詳細
1401 15.7万円 10,000円 / - 1DK 27.86m2 1ヶ月 0ヶ月 お気に入り 物件詳細
1403 15.8万円 10,000円 / - 1DK 27.83m2 1ヶ月 0ヶ月 お気に入り 物件詳細
1501 16.2万円 10,000円 / - 1DK 27.86m2 1ヶ月 0ヶ月 お気に入り 物件詳細
1502 15.9万円 10,000円 / - 1DK 26.2m2 1ヶ月 0ヶ月 お気に入り 物件詳細
1503 16.3万円 10,000円 / - 1DK 27.83m2 1ヶ月 0ヶ月 お気に入り 物件詳細
1505 24.5万円 15,000円 / - 2LDK 41.79m2 1ヶ月 0ヶ月 お気に入り 物件詳細
044-276-2536
株式会社石川商事 川崎東口店
お問い合わせNO:RHS-108399-41

この物件に似た物件をチェック!

  • 賃貸マンション 16.7万円

    蒲田駅 徒歩4分

    1K(26.51u)

    ★川崎・蒲田エリアのお部屋探しは石川商事にお任せください♪♪★

  • 賃貸マンション 15.8万円

    蒲田駅 徒歩10分

    1LDK(31.40u)

    ★川崎・蒲田エリアのお部屋探しは石川商事にお任せください♪♪★

  • 賃貸マンション 16.7万円

    蒲田駅 徒歩10分

    1LDK(32.44u)

    ★川崎・蒲田エリアのお部屋探しは石川商事にお任せください♪♪★

  • 賃貸マンション 16.7万円

    蒲田駅 徒歩10分

    1LDK(32.44u)

    ★川崎・蒲田エリアのお部屋探しは石川商事にお任せください♪♪★


閲覧した物件の履歴

閲覧した物件の一覧を見る

最近検索した条件一覧



気になったら今すぐ!カンタンお問合せ



お問合せ内容必須
【備考欄】
希望条件・来店希望日・その他質問がございましたらご記入ください。
お客様情報
お名前必須
連絡先必須


※ご記入いただいたメールアドレス宛てに、お問合せ内容の確認メールをお送りいたします。
※Yahoo!メールなどのフリーメールをご利用の場合、迷惑メールフォルダに入る場合があります。
 迷惑メールのフォルダ・設定等をご確認下さい。
メールアドレス
電話番号
FAX(任意)



個人情報の取扱いについてを必ずご確認ください。内容に同意の上、確認画面へお進みください。

 


▲ページのTOPへ戻る



お問合せはこちら

株式会社石川商事 川崎東口店 044-276-2536