コンフォリア・リヴ南六郷 雑色の1LDK賃貸マンション!|株式会社石川商事

営業時間 10:00〜18:00
定休日  水曜、第1・3火曜

コンフォリア・リヴ南六郷 513 雑色の1LDK賃貸マンション 
  • お気に入り追加
  • お問い合わせ
  • 印刷

  • 19.6万円 / 管理費:- / 共益費:10,000円
  • 間取り:1LDK / 専有面積:42.93m2
  • 敷金:1ヶ月 / 礼金:0ヶ月 / 保証金:0ヶ月 / 償却: 0ヶ月 / 敷引:-
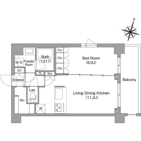
【間取】 
  • 【間取】 
  • 【建物外観】 
  • 【建物外観】 
  • 【その他共有部分】 
  • 【その他共有部分】 宅配ボックス
  • 【その他共有部分】 

【コンフォリア・リヴ南六郷についてスタッフからのイチオシポイント!】

★川崎・蒲田エリアのお部屋探しは石川商事にお任せください♪♪★
コンフォリア・リヴ南六郷は東京都大田区南六郷3丁目【京急本線 雑色駅徒歩10分】にある1LDK賃貸マンションです。
新築築の6階建てのマンションで、お部屋は6階建ての5階部分です。
物件の広さは42.93m2で人気の1LDKです。
※お部屋のもっと詳しい内容や入居時期、諸条件のご相談など、ホームページには掲載が間に合わず載せきれていない情報もございます。
気になることが御座いましたらお気軽にメールにてお問い合わせください。
044-276-2536
株式会社石川商事 川崎東口店
お問い合わせNO:RHS-108407-16

物件基本情報

所在地 東京都大田区南六郷3丁目 
交通 京急本線 「雑色駅」 徒歩10分
JR京浜東北・根岸線 「蒲田駅」 京急バス 六郷小学校 バス乗車時間20分  停歩3分
JR京浜東北・根岸線 「川崎駅」 京急バス 六郷小学校 バス乗車時間18分  停歩3分
種別 / 構造 マンション / RC造(鉄筋コンクリート造) 主要採光面 北東 所在階 / 階数 5階 / 6階
築年月 新築  間取り 1LDK( 洋室6畳/LDK11.2畳 ) 専有面積 42.93m2

物件詳細情報

損保 要 16,550円/2年  更新料 あり 19.6万円 鍵交換代 -
駐車場 空無 近隣駐車場   契約期間
借家区分
- -
現況 空家 入居可能日 2026年4月10日 取引態様 媒介
保証人代行会社 エポスカード(RP)(保証料:賃料等の50%(最低2万)、月額保証料:賃料等の1%(更新料無)) 仲介手数料 21.56万円 バイク置き場
他初期費用

設備詳細情報

キッチン
  • システムキッチン
  • 対面式キッチン
  • 3口以上コンロ
バス・トイレ
  • バストイレ別
  • 浴室乾燥機
  • 洗面所独立
  • 温水洗浄便座
  • トイレ
住空間
  • バルコニー
  • フローリング
設備・サービス
  • クロゼット
  • シューズボックス
  • TVインターホン
  • オートロック
  • エレベーター
  • 宅配ボックス
  • 駐輪場
  • バイク置場
  • BS
  • 防犯カメラ
特 徴
条件・その他  ペット:対応 / 保証人代行:必加入
  • 室内洗濯機置き場
  • 2F以上
コメント ★川崎・蒲田エリアのお部屋探しは石川商事にお任せください♪♪★
備 考 ☆2026年4月完成予定の新築物件です☆京急・雑色駅より徒歩10分の好立地!オートロック、防犯カメラ、モニター付きインターホン完備でセキュリティ設備充実しております☆

情報更新日:2026年03月15日 次回更新予定日:2026年03月29日
※各種情報と差異がある場合は現況優先となります

こちらの物件の空室状況

部屋番号 賃料 共益費 / 管理費 間取り 専有面積 敷金 礼金 お気に入り 物件詳細
213 19.5万円 10,000円 / - 1LDK 42.93m2 1ヶ月 0ヶ月 お気に入り 物件詳細
209 11.7万円 8,000円 / - 1K 25.2m2 1ヶ月 0ヶ月 お気に入り 物件詳細
313 19.5万円 10,000円 / - 1LDK 42.93m2 1ヶ月 0ヶ月 お気に入り 物件詳細
403 12.1万円 8,000円 / - 1K 25.2m2 1ヶ月 0ヶ月 お気に入り 物件詳細
406 12.1万円 8,000円 / - 1K 25.2m2 1ヶ月 0ヶ月 お気に入り 物件詳細
407 12.1万円 8,000円 / - 1K 25.2m2 1ヶ月 0ヶ月 お気に入り 物件詳細
408 12.1万円 8,000円 / - 1K 25.2m2 1ヶ月 0ヶ月 お気に入り 物件詳細
409 12.1万円 8,000円 / - 1K 25.2m2 1ヶ月 0ヶ月 お気に入り 物件詳細
410 12.1万円 8,000円 / - 1K 25.2m2 1ヶ月 0ヶ月 お気に入り 物件詳細
411 12.1万円 8,000円 / - 1K 25.2m2 1ヶ月 0ヶ月 お気に入り 物件詳細
513 19.6万円 10,000円 / - 1LDK 42.93m2 1ヶ月 0ヶ月 お気に入り 物件詳細
506 12.1万円 8,000円 / - 1K 25.2m2 1ヶ月 0ヶ月 お気に入り 物件詳細
507 12.1万円 8,000円 / - 1K 25.2m2 1ヶ月 0ヶ月 お気に入り 物件詳細
044-276-2536
株式会社石川商事 川崎東口店
お問い合わせNO:RHS-108407-16

この物件に似た物件をチェック!

  • 賃貸マンション 19.7万円

    川崎駅 徒歩9分

    2LDK(62.72u)

    【当社管理物件】川崎エリアなら石川商事までお問合せください★

  • 賃貸マンション 20.3万円

    蒲田駅 徒歩9分

    1LDK(46.48u)

    ★川崎・大田区エリアのお部屋探しは石川商事にお任せください♪♪★

  • 賃貸マンション 18.6万円

    蒲田駅 徒歩4分

    1DK(30.03u)

    ★川崎・蒲田エリアのお部屋探しは石川商事にお任せください♪♪★

  • 賃貸マンション 18.7万円

    蒲田駅 徒歩4分

    1DK(30.03u)

    ★川崎・蒲田エリアのお部屋探しは石川商事にお任せください♪♪★


閲覧した物件の履歴

閲覧した物件の一覧を見る

最近検索した条件一覧



気になったら今すぐ!カンタンお問合せ



お問合せ内容必須
【備考欄】
希望条件・来店希望日・その他質問がございましたらご記入ください。
お客様情報
お名前必須
連絡先必須


※ご記入いただいたメールアドレス宛てに、お問合せ内容の確認メールをお送りいたします。
※Yahoo!メールなどのフリーメールをご利用の場合、迷惑メールフォルダに入る場合があります。
 迷惑メールのフォルダ・設定等をご確認下さい。
メールアドレス
電話番号
FAX(任意)



個人情報の取扱いについてを必ずご確認ください。内容に同意の上、確認画面へお進みください。

 


▲ページのTOPへ戻る



お問合せはこちら

株式会社石川商事 川崎東口店 044-276-2536