スタイリオ蒲田WEST 1004 蒲田の1LDK賃貸マンション
- 20.1万円 / 管理費:- / 共益費:12,000円
- 間取り:1LDK / 専有面積:35.88m2
- 敷金:1ヶ月 / 礼金:0ヶ月 / 保証金:0ヶ月 / 償却: 0ヶ月 / 敷引:-
【スタイリオ蒲田WESTについてスタッフからのイチオシポイント!】
★川崎・蒲田エリアのお部屋探しは石川商事にお任せください♪♪★
スタイリオ蒲田WESTは東京都大田区西蒲田7丁目【JR京浜東北・根岸線 蒲田駅徒歩4分】にある1LDK賃貸マンションです。
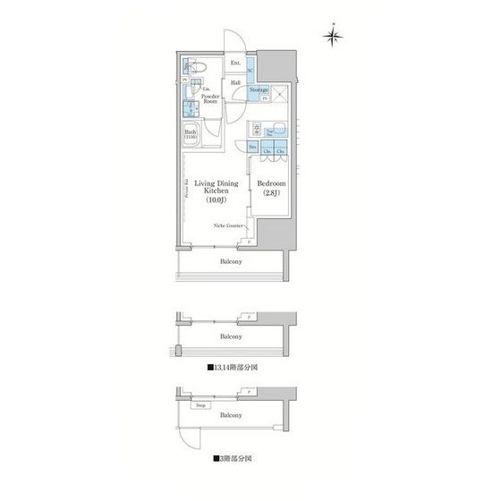
新築築の14階建てのマンションで、お部屋は14階建ての10階部分です。
物件の広さは35.88m 2で人気の1LDKです。
※お部屋のもっと詳しい内容や入居時期、諸条件のご相談など、ホームページには掲載が間に合わず載せきれていない情報もございます。 気になることが御座いましたらお気軽にメールにてお問い合わせください。
044-276-2536
株式会社石川商事 川崎東口店
お問い合わせNO:RHS-108370-29
| 所在地 |
東京都大田区西蒲田7丁目 |
| 交通 |
JR京浜東北・根岸線 「蒲田駅」 徒歩4分
東急池上線 「蓮沼駅」 徒歩7分
京急本線 「京急蒲田駅」 徒歩16分
|
| 種別 / 構造 |
マンション / RC造(鉄筋コンクリート造) |
主要採光面 |
南 |
所在階 / 階数 |
10階 / 14階 |
| 築年月 |
新築 |
間取り |
1LDK( 洋室2.8畳/LDK10畳 ) |
専有面積 |
35.88m2 |
| 損保 |
要 16,550円 |
更新料 |
あり 20.1万円 |
鍵交換代 |
- |
| 駐車場 |
空無 |
近隣駐車場 |
|
契約期間 借家区分 |
2年 定期借家 |
| 現況 |
空家 |
入居可能日 |
2026年3月20日 |
取引態様 |
媒介 |
| 保証人代行会社 |
あんしんQ−Rent(初回保証料:賃料等の50%(最低2万)、月次保証料:賃料等の1%、口座振替手数 |
仲介手数料 |
22.11万円 |
バイク置き場 |
|
| 他初期費用 |
|
| キッチン |
|
| バス・トイレ |
- バストイレ別
- 追焚機能浴室
- 浴室乾燥機
- 洗面所独立
- 温水洗浄便座
- トイレ
|
| 住空間 |
|
| 設備・サービス |
- クロゼット
- シューズボックス
- トランクルーム
- 収納スペース
- TVインターホン
- オートロック
- エレベーター
- 宅配ボックス
- 駐輪場
- バイク置場
- BS
- CATV
|
| 特 徴 |
|
| 条件・その他 |
保証人代行:必加入 / フリーレント:1ヶ月あり |
| コメント |
★川崎・蒲田エリアのお部屋探しは石川商事にお任せください♪♪★ |
| 備 考 |
☆2026年3月完成予定の新築物件です☆フリーレント1ヶ月!インターネット無料!JR蒲田駅より徒歩4分!スーパー・コンビニなどが近く生活に便利です♪ |
| 情報更新日:2026年02月11日 |
次回更新予定日:2026年02月25日 |
※各種情報と差異がある場合は現況優先となります
こちらの物件の空室状況 |
| 部屋番号 |
賃料 |
共益費 / 管理費 |
間取り |
専有面積 |
敷金 |
礼金 |
お気に入り |
物件詳細 |
| 301 |
21万円 |
12,000円 / - |
1LDK |
39.38m2 |
1ヶ月 |
0ヶ月 |
お気に入り |
物件詳細 |
| 302 |
18.2万円 |
10,000円 / - |
1DK |
30.03m2 |
1ヶ月 |
0ヶ月 |
お気に入り |
物件詳細 |
| 303 |
16.7万円 |
10,000円 / - |
1K |
26.51m2 |
1ヶ月 |
0ヶ月 |
お気に入り |
物件詳細 |
| 305 |
22.5万円 |
12,000円 / - |
1LDK |
41.35m2 |
1ヶ月 |
0ヶ月 |
お気に入り |
物件詳細 |
| 306 |
18.5万円 |
10,000円 / - |
1DK |
33.06m2 |
1ヶ月 |
0ヶ月 |
お気に入り |
物件詳細 |
| 307 |
28.4万円 |
15,000円 / - |
2LDK |
52.83m2 |
1ヶ月 |
0ヶ月 |
お気に入り |
物件詳細 |
| 601 |
21.3万円 |
12,000円 / - |
1LDK |
39.38m2 |
1ヶ月 |
0ヶ月 |
お気に入り |
物件詳細 |
| 602 |
18.5万円 |
10,000円 / - |
1DK |
30.03m2 |
1ヶ月 |
0ヶ月 |
お気に入り |
物件詳細 |
| 603 |
17万円 |
10,000円 / - |
1K |
26.51m2 |
1ヶ月 |
0ヶ月 |
お気に入り |
物件詳細 |
| 604 |
19.7万円 |
12,000円 / - |
1LDK |
35.88m2 |
1ヶ月 |
0ヶ月 |
お気に入り |
物件詳細 |
| 605 |
22.8万円 |
12,000円 / - |
1LDK |
41.35m2 |
1ヶ月 |
0ヶ月 |
お気に入り |
物件詳細 |
| 606 |
18.8万円 |
10,000円 / - |
1DK |
31.79m2 |
1ヶ月 |
0ヶ月 |
お気に入り |
物件詳細 |
| 607 |
28.7万円 |
15,000円 / - |
2LDK |
52.83m2 |
1ヶ月 |
0ヶ月 |
お気に入り |
物件詳細 |
| 701 |
21.4万円 |
12,000円 / - |
1LDK |
39.38m2 |
1ヶ月 |
0ヶ月 |
お気に入り |
物件詳細 |
| 702 |
18.6万円 |
10,000円 / - |
1DK |
30.03m2 |
1ヶ月 |
0ヶ月 |
お気に入り |
物件詳細 |
| 703 |
17.1万円 |
10,000円 / - |
1K |
26.51m2 |
1ヶ月 |
0ヶ月 |
お気に入り |
物件詳細 |
| 704 |
19.8万円 |
12,000円 / - |
1LDK |
35.88m2 |
1ヶ月 |
0ヶ月 |
お気に入り |
物件詳細 |
| 705 |
22.9万円 |
12,000円 / - |
1LDK |
41.35m2 |
1ヶ月 |
0ヶ月 |
お気に入り |
物件詳細 |
| 706 |
18.9万円 |
10,000円 / - |
1DK |
31.79m2 |
1ヶ月 |
0ヶ月 |
お気に入り |
物件詳細 |
| 707 |
28.8万円 |
15,000円 / - |
2LDK |
52.83m2 |
1ヶ月 |
0ヶ月 |
お気に入り |
物件詳細 |
| 801 |
21.5万円 |
12,000円 / - |
1LDK |
39.38m2 |
1ヶ月 |
0ヶ月 |
お気に入り |
物件詳細 |
| 802 |
18.7万円 |
10,000円 / - |
1DK |
30.03m2 |
1ヶ月 |
0ヶ月 |
お気に入り |
物件詳細 |
| 803 |
17.2万円 |
10,000円 / - |
1K |
26.51m2 |
1ヶ月 |
0ヶ月 |
お気に入り |
物件詳細 |
| 804 |
19.9万円 |
12,000円 / - |
1LDK |
35.88m2 |
1ヶ月 |
0ヶ月 |
お気に入り |
物件詳細 |
| 805 |
23万円 |
12,000円 / - |
1LDK |
41.35m2 |
1ヶ月 |
0ヶ月 |
お気に入り |
物件詳細 |
| 806 |
19万円 |
10,000円 / - |
1DK |
31.79m2 |
1ヶ月 |
0ヶ月 |
お気に入り |
物件詳細 |
| 807 |
28.9万円 |
15,000円 / - |
2LDK |
52.83m2 |
1ヶ月 |
0ヶ月 |
お気に入り |
物件詳細 |
| 1001 |
21.7万円 |
12,000円 / - |
1LDK |
39.38m2 |
1ヶ月 |
0ヶ月 |
お気に入り |
物件詳細 |
| 1002 |
18.9万円 |
10,000円 / - |
1DK |
30.03m2 |
1ヶ月 |
0ヶ月 |
お気に入り |
物件詳細 |
| 1003 |
17.4万円 |
10,000円 / - |
1K |
26.51m2 |
1ヶ月 |
0ヶ月 |
お気に入り |
物件詳細 |
| 1004 |
20.1万円 |
12,000円 / - |
1LDK |
35.88m2 |
1ヶ月 |
0ヶ月 |
お気に入り |
物件詳細 |
| 1006 |
19.2万円 |
10,000円 / - |
1DK |
31.79m2 |
1ヶ月 |
0ヶ月 |
お気に入り |
物件詳細 |
| 1007 |
29.1万円 |
15,000円 / - |
2LDK |
52.83m2 |
1ヶ月 |
0ヶ月 |
お気に入り |
物件詳細 |
| 1201 |
22万円 |
12,000円 / - |
1LDK |
39.38m2 |
1ヶ月 |
0ヶ月 |
お気に入り |
物件詳細 |
| 1202 |
19.2万円 |
10,000円 / - |
1DK |
30.03m2 |
1ヶ月 |
0ヶ月 |
お気に入り |
物件詳細 |
| 1203 |
17.7万円 |
10,000円 / - |
1K |
26.51m2 |
1ヶ月 |
0ヶ月 |
お気に入り |
物件詳細 |
| 1204 |
20.4万円 |
12,000円 / - |
1LDK |
35.88m2 |
1ヶ月 |
0ヶ月 |
お気に入り |
物件詳細 |
| 1205 |
23.7万円 |
12,000円 / - |
1LDK |
41.35m2 |
1ヶ月 |
0ヶ月 |
お気に入り |
物件詳細 |
| 1206 |
19.5万円 |
10,000円 / - |
1DK |
31.79m2 |
1ヶ月 |
0ヶ月 |
お気に入り |
物件詳細 |
| 1207 |
29.4万円 |
15,000円 / - |
2LDK |
52.83m2 |
1ヶ月 |
0ヶ月 |
お気に入り |
物件詳細 |
| 1401 |
22.3万円 |
12,000円 / - |
1LDK |
39.38m2 |
1ヶ月 |
0ヶ月 |
お気に入り |
物件詳細 |
| 1402 |
19.5万円 |
10,000円 / - |
1DK |
30.03m2 |
1ヶ月 |
0ヶ月 |
お気に入り |
物件詳細 |
| 1403 |
18万円 |
10,000円 / - |
1K |
26.51m2 |
1ヶ月 |
0ヶ月 |
お気に入り |
物件詳細 |
| 1404 |
20.7万円 |
12,000円 / - |
1LDK |
35.88m2 |
1ヶ月 |
0ヶ月 |
お気に入り |
物件詳細 |
| 1405 |
24.1万円 |
12,000円 / - |
1LDK |
41.35m2 |
1ヶ月 |
0ヶ月 |
お気に入り |
物件詳細 |
| 1407 |
29.7万円 |
15,000円 / - |
2LDK |
52.83m2 |
1ヶ月 |
0ヶ月 |
お気に入り |
物件詳細 |
|
044-276-2536
株式会社石川商事 川崎東口店
お問い合わせNO:RHS-108370-29
この物件に似た物件をチェック!
-
賃貸マンション 20.9万円
蒲田駅 徒歩9分 1LDK(46.48u)
-
賃貸マンション 20.4万円
蒲田駅 徒歩9分 1LDK(46.48u)
-
賃貸マンション 20.5万円
蒲田駅 徒歩9分 1LDK(46.48u)
-
賃貸マンション 19.9万円
蒲田駅 徒歩9分 1LDK(39.40u)
| ▲ページのTOPへ戻る |
|