沼部の1K賃貸マンション!|株式会社石川商事
PC
営業時間 10:00〜18:00
定休日 水曜、第1・3火曜
総合問い合わせ
お部屋探しリクエスト
総合TOP
賃貸検索
オーナー様へ
リフォーム
入居者様
資産活用
売買検索
売却
採用情報
会社概要
現在
0
件
マイ条件の活用法
お気に入りの活用法
TOPページ
>
大田区の賃貸情報一覧
>
ディアレイシャス田園調布本町 沼部の1K賃貸マンション!
物件概要
交通機関
東急多摩川線
沼部駅
徒歩8分
東急東横線 多摩川 徒歩10分
東急池上線 御嶽山 徒歩12分
住所
東京都大田区田園調布本町
種別 / 構造
マンション / RC造(鉄筋コンクリート造)
築年数
2025年2月
階層
5階
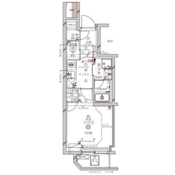
間取り一例
1K
設備・条件
の一例
給湯 / バストイレ別 / 浴室乾燥機 / 洗面所独立 / 温水洗浄便座 / トイレ / バルコニー / フローリング / エアコン / クロゼット / シューズボックス / 収納スペース / TVインターホン / オートロック / エレベーター / 宅配ボックス / 駐輪場 / BS / 防犯カメラ / 火災警報器(報知機) / システムキッチン /
こだわり条件から大田区の物件を探す
大田区+給湯
大田区+バストイレ別
大田区+浴室乾燥機
大田区+洗面所独立
大田区+温水洗浄便座
大田区+トイレ
大田区+システムキッチン
大田区+バルコニー
大田区+フローリング
大田区+エアコン
大田区+クロゼット
大田区+シューズボックス
大田区+収納スペース
大田区+TVインターホン
大田区+オートロック
大田区+エレベーター
大田区+宅配ボックス
大田区+駐輪場
大田区+BS
大田区+防犯カメラ
大田区+火災警報器(報知機)
大田区+室内洗濯機置き場
大田区+分譲賃貸
大田区+2F以上
最近検索した条件一覧
株式会社石川商事 武蔵小杉店
〒〒211-0063
神奈川県川崎市中原区小杉町3-1501-7-107 セントア武蔵小杉
TEL : 044-280-1825
お問合わせNO:
108001-4
空室情報の確認や詳細を知りたい方
お問合せはお気軽にお問合せください!
▲ページのTOPへ戻る
賃貸検索
売買検索
お問合わせ
オーナー様へ